
项目简介
云南鹏程生物有机肥有限公司,成立于2009年8月。坐落于安宁的西南部云南鹏程集团所属《安宁标准化蛋鸡养殖园区》内,整个养殖园区年养殖蛋鸡150万羽,公司每年将蛋鸡养殖过程中所产生鸡粪59400吨,利用微生物发酵技术将鸡粪原料制成有机肥料,变废为宝。经过6年的摸索与实践,公司目前拥有两条10万吨级有机肥料生产线,总投资3500万元,暨安宁有机肥生产线及祥云有机肥生产线,是云南省乃至我国西南地区产能很大的有机肥料生产厂家。

(环保局领导莅临指导)
为了削减有机肥生产过程中臭气的浓度,避免所产生的异臭味废气对设备的腐蚀及对员工、生产环境、周围大气环境等造成一定的影响。根据要求,须对产生的恶臭气体进行除臭处理,以确保处理后的尾气达标后排放。云南鹏程生物有机肥有限公司经过详细的市场调研和比选,于2021年6月与我司签订设备供货安装、环保验收EPC总包合同,经公司积极筹备材料,构建项目组织,在7月12日进场施工,8月10日调试完成,历时一个月,由我司承建的云南鹏程生物有机肥有限公司臭气治理项目顺利完工。施工期间克服雨季施工、高处作业等不利因素,严格执行重安全、保质量、抓进度行业标准,高标准、严要求打造精品工程。
为满足日趋严格的环保要求,选择处理技术成熟、效果好、投资省、运行费用低的预洗涤+生物过滤处理工艺,该工艺运行稳定可靠,可调节性强,操作管理方便并最大限度地避免二次污染。

(收集风管主管)

(收集风管支管)
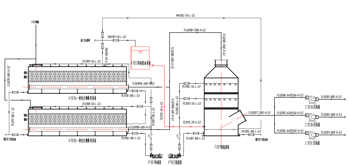
针对鹏程生物公司污染源情况臭气收集利用厂房的密封性能,不采用加罩收集,在房间内布管进行收集,各管道上多面不均匀装设吸气口。每根管道通过安装阀门用于调节风量。各支管收集后的恶臭气体汇集至主管中,经引风机送至后端处理设备。

(洗涤塔)
经收集的恶臭气体进入于洗涤塔,预洗涤塔采用填料塔,增加气液接触面积和接触时间,处理效果更佳。在预洗涤塔内,恶臭气体与雾化工艺水逆流接触,去除部分粉尘,易溶、可溶性物质,并被加湿后进入生物滤床进一步处理。同时配备除臭液投加系统,用于分解废气中恶臭物质。

(生物滤床)
恶臭气体通过洗涤塔的处理进入到生物滤床进行除臭,生物除臭原理是通过微生物对恶臭物质吸附、吸收后通过自身的新陈代谢作用把恶臭物质转化为自身的细胞成分,从而促进微生物本身繁衍、生长的过程。臭气治理成套设备设计、制造严格执行行业标准,经本系统处理后,满足国家和当地污染物排放标准,处理后H2S排放浓度在0.33 Kg/h、NH3排放浓度在4.9 Kg/h以下,去除效率达到90%以上,且无二次污染。


(生物除臭原理示意图)
各支管收集后的恶臭气体汇集至主管中,经引风机送至洗涤塔,在预洗涤塔内,恶臭气体与雾化工艺水逆流接触,去除部分粉尘,易溶、可溶性物质,并被加湿后进入生物滤床通过微生物对恶臭物质吸附、吸收后通过自身的新陈代谢作用把恶臭物质转化为自身的细胞成分,从而促进微生物本身繁衍、生长的过程。除臭气体最后通过烟囱达标排放。


(工艺流程图)

(项目施工中照片)

(项目施工中照片)

(项目施工中照片)

(项目施工中照片)

(收集管道)

(引风机)